Ufficio luminoso in affitto a Bolzano Sud
- 1.900 €
Informazioni Generali
- ufficio, Commerciale
- 2
- 0
- 200 mq
- K0131
Descrizione
nr. rif: K0131
Disponibile dal 01/05/2026
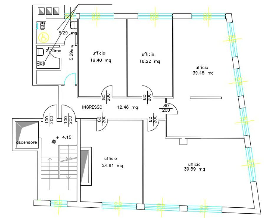
A Bolzano Sud è disponibile in locazione un ufficio moderno e molto luminoso situato al primo piano. La superficie è di circa 200 m² commerciali (circa 167 m² netti) ed è composta da 5 uffici e 2 bagni.
L’immobile è dotato di aria condizionata, ambienti ampi e luminosi e viene consegnato parzialmente arredato.
Canone di locazione: 1.900 € / mese + spese.
È inoltre possibile affittare separatamente un magazzino di circa 400 m² al piano interrato. Posti auto disponibili su richiesta con canone aggiuntivo. Soluzione ideale per studi professionali, uffici direzionali o aziende che cercano spazi funzionali e rappresentativi.
Dettagli
Ultimo aggiornamento 07.02.2026-
Numero di riferimento K0131
-
Prezzo 1.900 €
-
Superficie 200 mq
-
Bagni 2
-
Tipologia ufficio
-
Status Affitto
-
Stato al rogito Non definito
-
Consegna 01.05.2026
-
Spese condominiali € al mese
-
Numero locali 5
-
Piano numero non indicato
-
Totale piani edificio non indicato
-
Stato manutenzione buono
Classe energetica
-
Classe energetica: In fase di definizione
-
Unità di misura classe energetica: kWh/m3anno
- A+
- A
- B
- C
- D
- E
- F
- G
Contatti
Visualizza immobiliImmobili simili
Ufficio in affitto in posizione centrale a Bolzano Gries – Corso Libertà
- 1.800 €













